Design conceptLegna
Legnaはイタリア語で「木材」。
木材をメインに天然素材を
可能な限り使用することで温もりのある空間に。
天然素材は年数が経つにつれ経年変化し表情を変えます。
劣化ではなく味に、いずれはヴィンテージへ、
高級感を演出することで生活に豊かさをもたらします。
Higashi-ikomaConstruction example
-

- 写真1:温もりあるオーク材の壁面、高級感あふれるセラミック調タイルの床、間接照明で浮かび上がるアーチ型の天井により、
落ち着きと邸宅感に包まれるLD
遠藤照明ホームページはこちら - 写真2・3:ランダムに貼った大理石調タイルとステンレス素材によるモダンなキッチン
セスパ商品紹介ページはこちら - 写真4:キッチン上部には日用品や防災備蓄品などを豊富にストックできる天井裏収納を設置。
- 写真5:キッチン背後にはオーク材とブラックミラーガラスによる洗練されたクロゼットを。食器や家電品を美しく収納可能。
- 写真1:温もりあるオーク材の壁面、高級感あふれるセラミック調タイルの床、間接照明で浮かび上がるアーチ型の天井により、
-

- 写真1:対面キッチンの下部はオーク材のリブ仕上げ。間接照明で照らすことで素材感を愛でる意匠に
- 写真2:白基調の明るいリビングにブラックスレートのパネルを配し、空間を引き締めるようデザイン
- 写真3:木目の美しいオーク材のTVボード。パネルとの間にコード用の配管を仕込み、配線がすっきり収まるよう配慮
- 写真4:床から浮かしたTVボードの下部に間接照明を入れ、空間を広く見せるよう考慮。
パネルにも縦に間接照明を入れ、印象的なアクセントに。
-

- 写真1:大理石調の大判タイルで仕立てた、格式あるホテルを想わせるバスルーム。
一気に洗い流すオーバーヘッドシャワーが爽快なバスタイムを提供 - 写真2:操作はスタイリッシュなシャワーパネルで
- 写真3:洗面台の天板は水に強く清潔なアクリル系人工大理石「コーリアン」。置型のボウルとオーク材の面材で優美な表情に
- 写真4:バスルームと洗面室の間は強化ガラス仕様で、床タイルの意匠を合わせることで広い一体空間を演出。
- 写真1:大理石調の大判タイルで仕立てた、格式あるホテルを想わせるバスルーム。
-

- 写真1:玄関はオーク材の壁面、セラミック調タイルの床、折り上げ天井でLDKと統一感ある空間に
- 写真2:主寝室の床は素足に優しいカーペット敷き。ベッドのヘッドボードの位置には、背もたれになるオーク材のパネル。
間接照明が壁面タイルを照らし、寛ぎの時を演出 - 写真3:階段を中心に、2つの洋室をガラスで間仕切り、部屋を広く感じられるよう設計。もちろんプリーツスクリーンでプライバシーの確保も可能
- 写真4:階段は1段目と手すり下部に照明を入れ、夜間の足元を安全に。
-

- 写真1:オーク材の壁面、大理石調タイルの床、間接照明のコーディネートをトイレにまで展開し、住まい全体を同じコンセプトで統一
- 写真2:トイレの手洗いも、洗面室と統一されたデザインコンセプトで美しくモダンに
- 写真3:シューズクロゼットの扉もオーク材とし、上下に間接照明を設けることで温かく上質な空間に。
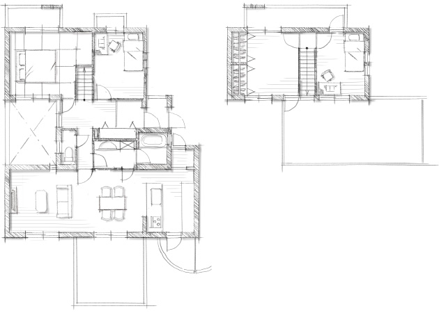
Before after
-

Before
アーチ天井がキッチン上部にも及んでおり、
利用する余地のある空間と考えました。
玄関収納が食い込んでいるため
洗面室に圧迫感があること、
ロフト付きの2階洋室がかえって
手狭に感じること、
和室の有無も検討対象でした。
-

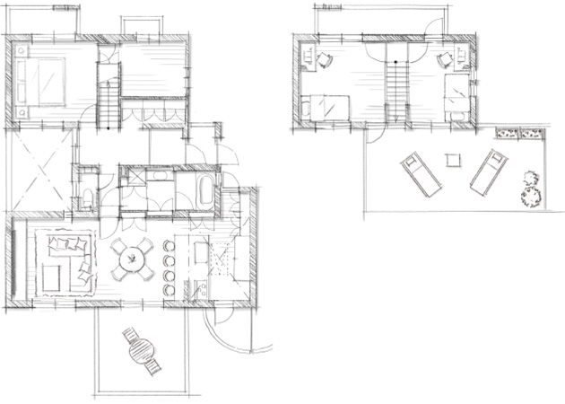
After
リビング・ダイニングのアーチ天井は
そのままに、キッチン上部は収納に。
玄関収納はシューズクロゼットに変更し、
そのぶんだけ洗面室を拡大しました。
2階洋室はロフトを廃して
広く明るく開放的に。
和室を主寝室に変更しています。
階段下からのアクセスで、
WIC又は書斎として活用。
大変多くのお問い合わせ、
ご内覧をいただき誠にありがとうございました。
